サンハイツ大和第3 1103号室では
現在、和室2部屋を洋室2部屋へリフォーム工事を行っております。
内覧随時承っておりますのでお気軽にお問合せください(^^)
今回も1104号室同様にラミネートフロアではなく、無垢材“バーチ(樺)”の床材を採用しました↓

天然木の香りって森林浴をしている気分になれて落ち着きますよね(^^)
また、冬は暖かく・夏は調湿作用もあるのが特徴です。
賃貸だとメンテナンス面を考えたりコストが高いことから無垢の床は採用されにくいものですが
大和屋㈱は不動産賃貸だけではなく、建材商品を取り扱っている会社でもあります。
そのような経緯からデメリットをクリアでき、他の物件にはない“住み心地の良さ”を提供できるのも
サンハイツ大和の特徴です。
熊谷市内でお部屋をお探しの方、内覧随時承っておりますのでぜひ温かみのある木の質感を体感ください◎
また、今回洋室はオープンクローゼットにはアクセントクロスを採用しました。

廊下のデザインは白いレンガ調のアクセントクロスとグレーの壁は黒板として利用できます。
賃貸でもお子様の落書きはここなら安心!思う存分落書きしちゃいましょう★
また、家族間の伝言板ややることリストを描いておくなど様々な用途にご活用できます。ぜひご利用くださいね◎
洗面化粧台やエアコンも新品入れ替え予定となっております。
徒歩1分ほどの距離にローソン熊谷万平町一丁目店様がオープン。
コンビニに歩いていけるなんて便利ですよね~
そんなコンビニに近い物件をお探しのお客様にも大変おすすめの物件です。

【物件詳細】
物件名:サンハイツ大和第3 1103号室
住 所:埼玉県熊谷市万平町2-39
賃 料:75,000円 共益費:3,000円
駐車料:6,400円(税別)
敷金2か月分 礼金1か月分
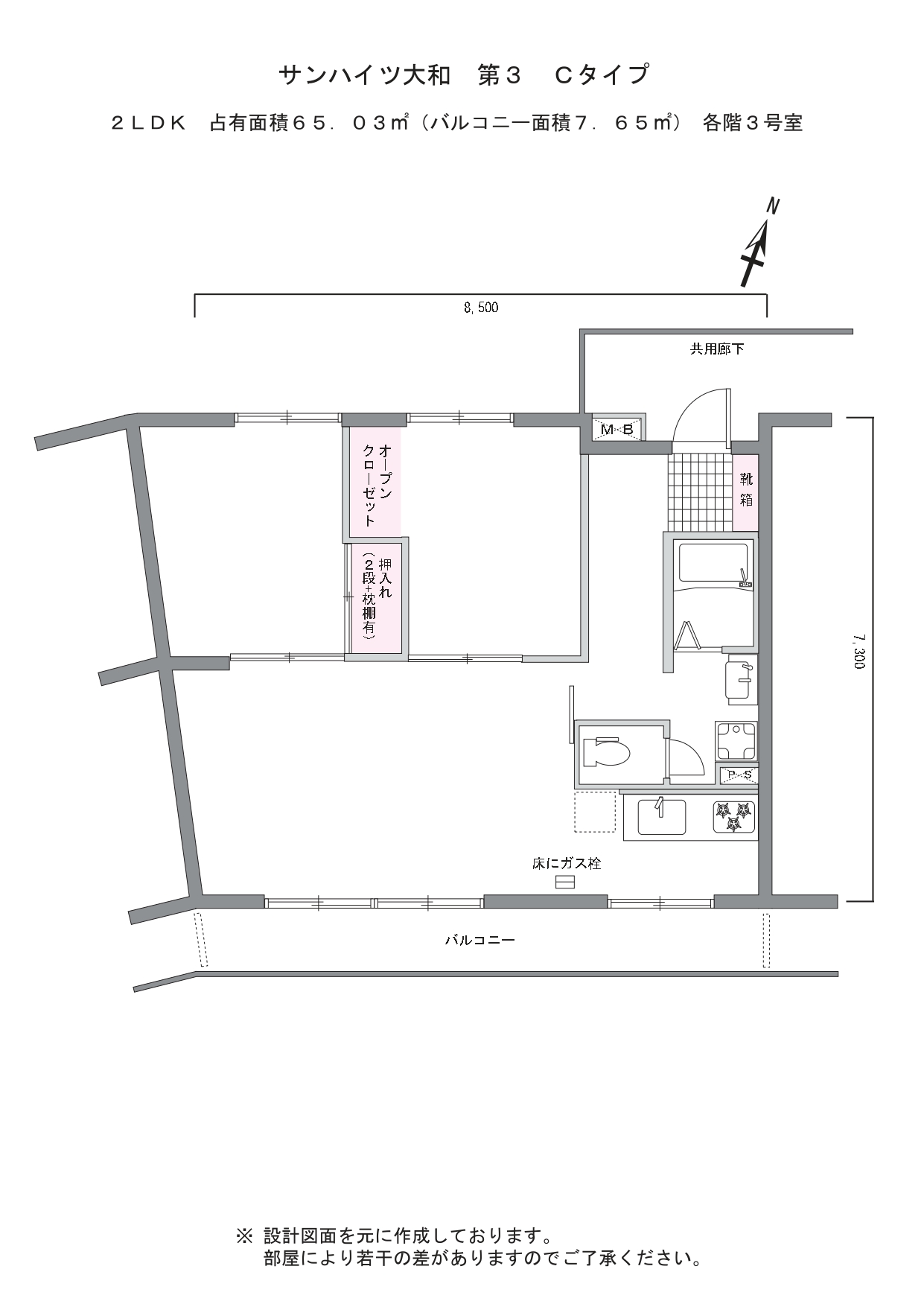
間取り:2LDK
