埼玉県熊谷市の月極駐車場・時間貸駐車場をご紹介

駐車場インフォメーション

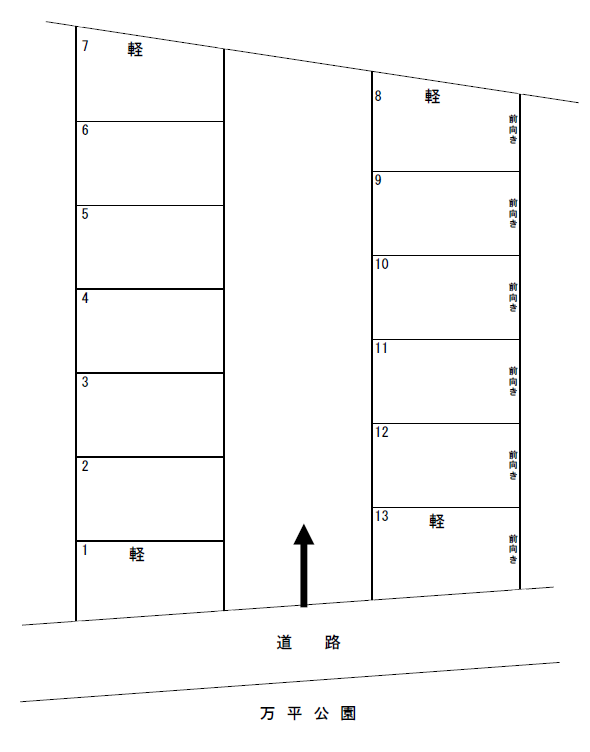
万平町・桜木町・曙町の駐車場をお探しの方はこちら!熊谷駅南口から万平公園を目印に歩いて6分、全13区画の砂利敷の駐車場です。看板前の区画は軽専用です。

住所 熊谷市曙町1-66
台数

13台

駐車料 普通区画 8,800円(税込)
軽 区 画 6,600円(税込)
路面 砂利
車両制限 積載量1t以上のトラック及び大型外車は不可
契約期間 1年間(以降自動更新)
支払方法 口座引落(開始までの3ヶ月分は前納)
近隣駐車場 大和屋第5駐車場
空き情報

満車


 ページTOPへ戻る