駐車場インフォメーション


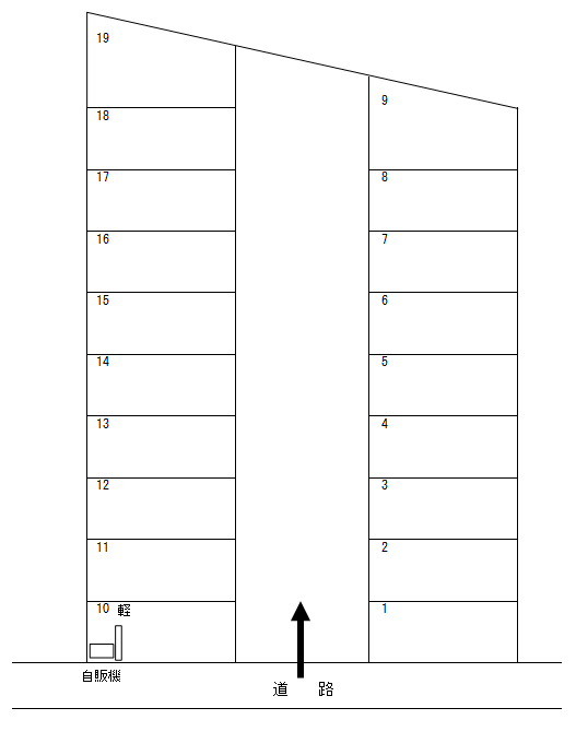
大和屋駐車場の中で熊谷駅南口に最も近い、徒歩1分という利便性が嬉しい駐車場です。忙しい朝も、ここなら電車に間に合いそうですね。入口左手前の自販機前の区画は軽自動車専用で割安価格ですので、ぜひチェックしてみてください!
| 住所 | 熊谷市桜木町1-197 |
|---|---|
| 台数 |
19台 |
| 駐車料 | 普通区画 14,300円(税込) 軽 区 画 12,100円(税込) |
| 路面 | 砂利 |
| 車両制限 | 積載量1t以上のトラック及び大型外車は不可 |
| 契約期間 | 1年間(以降自動更新) |
| 支払方法 | 口座引落(開始までの3ヶ月分は前納) |
| 近隣駐車場 | 大和屋第37駐車場 大和屋第31駐車場 |
| 空き情報 |
満
満車 |



 12月17日再撮影-scaled.jpg)
 12月17日再撮影-scaled.jpg)
 12月17日再撮影-scaled.jpg)

