埼玉県熊谷市のリフォーム物件は大和屋株式会社

広々とした間取り×落ち着いたクロス=ゆとりある暮らし

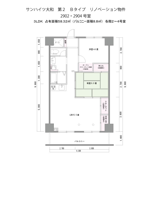
サンハイツ大和第2-2902号室 昭和62年3月
賃料 90,000円
共益費 5,000円
駐車料 13,000円(税別)〜

サンハイツ大和第2の最上階なので眺めも抜群!夏場は熊谷花火大会も鑑賞できます。

リビングを3LDKから2LDKへ大幅リフォームがこの部屋の注目ポイント。15.5畳の広々としたリビングに、落ち着いたブルーのアクセントクロスのLDKでの生活は、心にも身体にもゆとりが生まれますね♪

備え付けのクローゼットはそのまま活用し、4.5畳の洋室にもオープンクローゼットを設置したので、荷物の多い方でも安心の充実した収納スペースです。熊谷駅近く・広々としたお部屋でお探しの方はお早目にご内見ください

Facility
設備

room
間取り図

information
物件概要

サンハイツ大和第2 2902号室空室
住所 埼玉県熊谷市筑波1-26-1
交通 JR高崎線「熊谷駅」北口 徒歩10分
構造 鉄筋コンクリート造9階
賃料 90,000円
共益費 5,000円
駐車料 13,000円(税別)屋根なし
15,000円(税別)屋根あり
 ページTOPへ戻る